THE BUILD

The Land was purchased in 2015 and took three years to design, complete resource consent works and then a very long wait for building consent. The build started in April 2018 when we were finally granted our final stage of Building Consent, but as usual with loads of projects, we faced quite a few hurdles and delays.

Here is the breakdown of the build from start to finish.

Build+timeline.jpg

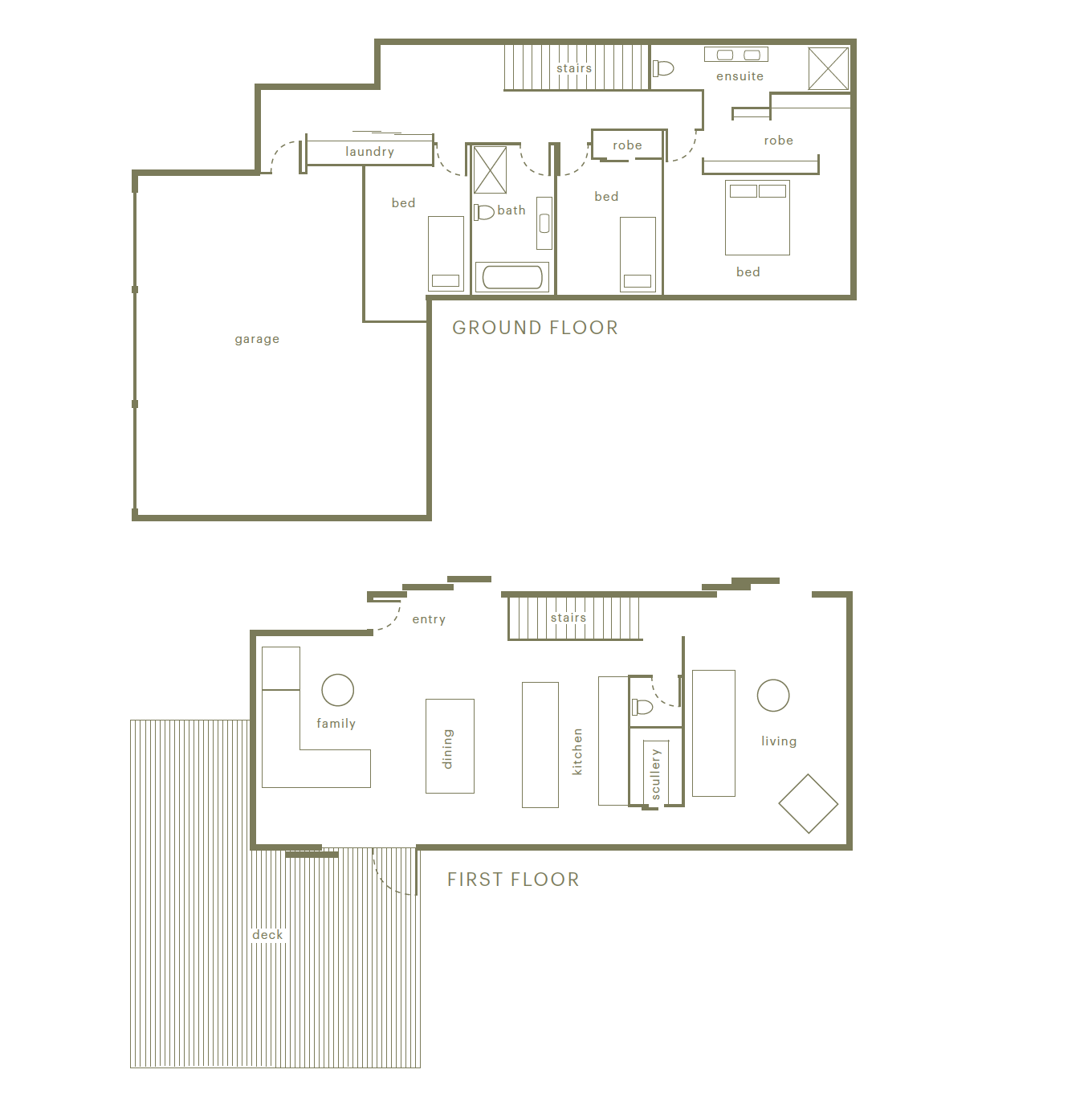
the floor plan

Screenshot 2020-06-15 21.49.38.png

stage #1

THE LAND PREPARATION

The land preparation involved tonnes and tonnes of soil and clay being excavated from the site, and then we had to work on stabilising the land ready for retaining and concrete pad

 
 

stage #2

the build COMMENCES

The build officially started in April 2018 with Xlam Cross Laminated Timber panels being installed within only a few days. Then the Buildstrong team came straight on board to get the build officially underway.

stage #3

CLADDING & GLAZING

We used a quarter sawn, banned sawn Cedar from Rosenfeld Kidson in different profiles throughout the house. Stained with ‘Black Teak’ Drydens Wood Oil on the garage, and ‘Dark’ Drydens Wood oil on the main house cladding.

Corban designed our own window joinery (which caused a lot of delay in consents), but was worth it to get the slim joinery profile with our glass. The glass install was a huge job that took about a month in total to complete.

stage #4

interior fitout

After the wrap was off and the house was fully sealed, we could start laying down the flooring, gibbing, tiling, painting and installing the key areas like Kitchen and Bathrooms.